Index des revues

  • Index des revues

La bibliothèque de l'université de Pau et des Pays de l'Adour

1984

    La bibliothèque de l'université de Pau et des Pays de l'Adour

    Bâtiment Droit-Lettres

    Par Henri Bosc

    Si l'on peut faire remonter la tradition universitaire de Pau et des Pays de l'Adour à 1549, date à laquelle «Le Collège du Pays souverain du Béarn"donnait son enseignement à Lescar et à Orthez, il faut savoir que Pau est redevenu ville universitaire avec la création en 1946 d'un Institut juridique et économique, en 1958 d'un Institut de Lettres (transformé ensuite en Collège littéraire), en 1959 d'un Collège scientifique.

    En 1968, les Collèges Littéraires et Scientifiques étaient transformés en facultés de plein exercice et l'Institut de Droit en Collège juridique.

    Après la promulgation de la Loi d'orientation de l'Enseignement supérieur du 12 novembre 1968, il est créé dans le cadre de l'Académie de Bordeaux une université à Pau prenant le nom d'Université de Pau et des Pays de l'Adour (arrêtés du 27 mars 1969 composition - et du 14 septembre 1970 statuts).

    Cette université s'est inscrite délibérément dès sa création dans le contexte géographique, économique et humain que représentent les Pays de l'Adour, couvrant outre les Pyrénées-Atlantiques, quatre départements voisins n'appartenant ni aux mêmes régions, ni aux mêmes académies (Pyrénées-Atlantiques, Sud des Landes, Sud du Gers, Ouest des Hautes-Pyrénées).

    La population des Pays de l'Adour est de l'ordre de 1 million d'habitants, le nombre des enseignants-chercheurs et des étudiants est de 6616 (1982-1983).

    L'Université de Pau et des Pays de l'Adour est une université pluridisciplinaire composée actuellement de quatre UER (Unités d'Enseignement et de Recherche) à Pau (avec une antenne à Bayonne) et d'un IUT (à Bayonne).

    A la transformation des instituts en collèges universitaires, il a été créé des sections à Pau de la Bibliothèque universitaire de Bordeaux (premier conservateur nommé: 1er janvier 1963), devenues Bibliothèque de l'Université de Pau et des Pays de l'Adour le 21 mai 1971 et logées d'abord dans des locaux provisoires.

    Dans le contexte que nous venons d'évoquer, 2 bâtiments de bibliothèque ont été construits à proximité l'un de l'autre, dans un campus de 29 hectares environ où tout est regroupé, au nord de la ville (où se développe la cité administrative : celui de la Section Sciences (2 020 m2), terminé en 1967 (première tranche), et celui des Sections Droit et Lettres, abritant également la Direction-Administrative et des services communs, achevé en 1975 pour sa première tranche, et dont il sera seulement question ici. Plutôt que d'avoir présenté ce bâtiment immédiatement après sa mise en service comme cela se fait habituellement, nous avons préféré attendre l'expérience de plusieurs années d'utilisation, nous permettant ainsi de porter un jugement que nous espérons plus objectif sur cette réalisation. Nous y ajouterons quelques considérations sur la coexistence de deux sections dans un même bâtiment, espérant que cela pourra être utile pour de futures constructions.

    La Bibliothèque Droit et Lettres

    Le bâtiment Droit-Lettres de la Bibliothèque universitaire s'intègre dans le Domaine Universitaire situé au Nord de l'agglomération. Il se situe à proximité de la Bibliothèque section Sciences au Sud, et forme un ensemble architectural avec la Factulté des lettres au Nord et, avec le bâtiment de la Faculté de Droit et Sciences Economiques au Nord-Ouest.

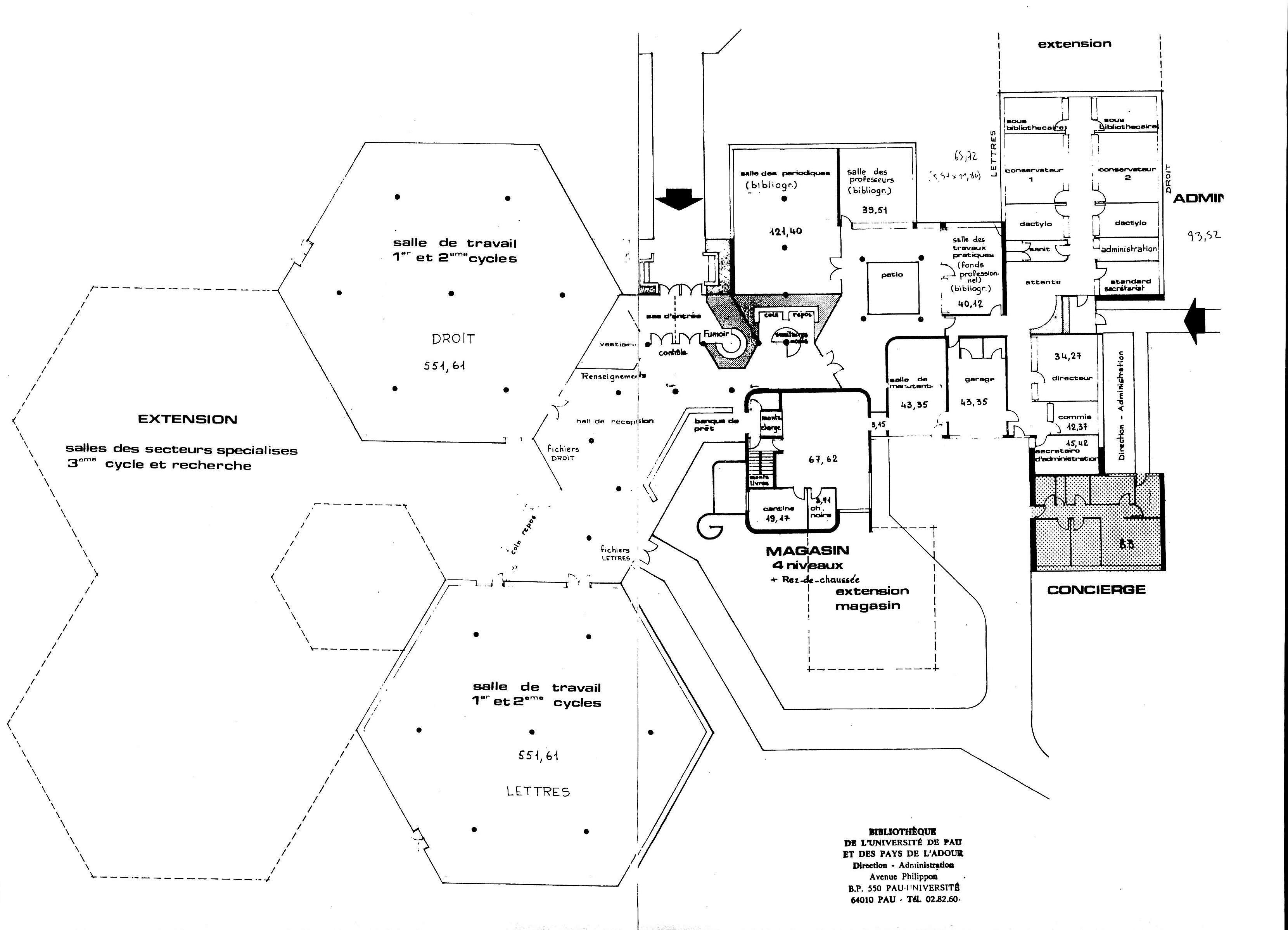
    Dominé par la tour des livres de 4 étages, ce bâtiment se présente sous la forme d'un rez-de-chaussée qui s'articule autour d'un vaste hall donnant accès à l'Ouest et au Sud à deux grandes salles de lectures hexagonales, une par discipline, et à l'Est à l'administration.

    Matériaux de base : le béton brut et le bois (avec poutres apparentes); les plafonds sont bas et les vitrages de petite dimension (facilités d'entretien et de nettoyage).

    Dans les grandes salles, un complément d'éclairage zénithal est fourni par des pyramides dominant les toitures-terrasses (ces hutteaux posent quelques problèmes d'étanchéité).

    Pour trancher avec un sol en dalles noires, le mobilier a été choisi de couleurs claires et vives, avec des zones de tons différents pour les sièges.

    Tables et rayonnages des salles de lecture, ainsi que les fichiers, sont ainsi de couleur blanche avec montants orange pour les rayonnages à livres du type 885 de chez Borgeaud (constitué de tablettes en stratifié blanc encadrées dans des structues métalliques laquées orange).

    Des plantes vertes et un patio contribuent à l'agrément des locaux.

    Construction et caractéristiques

    Approuvée en 1969 pour une surface totale de 6000m2, la construction de la première tranche de 3000 m2, prévue en 460 jours, s'est déroulée du dernier semestre 1973 au premier semestre 1975.

    L'étude du plan et des aménagements a été réalisée en étroite collaboraion entre l'architecte palois, M. Gresy et le directeur de la bibliothèque, M. Bosc (également conservateur de la Section Lettres jusqu'en septembre 1974), en liaison avec la Direction des Bibliothèques (M. Bleton); le conservateur de la Section Droit, M. Lapelerie, a participé activement à l'équipement et à l'aménagement des locaux (mobilier et matériel).

    Malgré la concertation régulière avec l'architecte (qui n'a pas toujours suivi les avis techniques qui lui étaient donnés), il n'a cependant pas été possible pour des raisons d'esthétique et surtout d'économie d'obtenir des bâtiments aussi fonctionnels qu'il aurait été souhaitable par suite notamment du parti strictement horizontal qui a été choisi: en particulier nous aurions souhaité des bureaux en mezzanines au-dessus du hall central à proximité immédiate de la banque de prêt et des services publics.

    Le bâtiment, de conception bibliothéconomique traditionnelle, devait d'abord abriter les Lettres en 1 tranche, et le Droit en 2e. Puis il est devenu commun.

    Enfin un sous-sol prévu pour les services annexes a été supprimé.

    Tout cela a posé de gros problèmes d'adaptation qui n'ont pas tous été parfaitement résolus.

    On trouvera en annexe descriptif et renseignements techniques. A l'intérieur du bâtiment, on peut regrouper ainsi les surfaces effectivement attribuées en première tranche aux sections qui y sont logées.

    Administration : 979 m2

    Droit : 1 045 m2

    Lettres : 1 045 m2

    3 069 M2

    On distingue en fait plusieurs zones:

    • 1 ) la zone administration (bureaux),
    • 2) la zone comprenant la salle des TP et enseignement professionnel, la salle des professeurs et de réunion, la salle de périodiques, prêt-inter (lettres) et terminal,
    • 3) la zone des salles de lecture, avec hall d'entrée et banque de prêt,
    • 4) les magasins à livres (le rez-de-chaussée prévu initialement comme salle de manutention a été équipé de rayonnages mobiles pour les volumes les plus demandés non mis en libre accès),
    • 5) la salle de manutention,
    • 6) le garage (voiture de service),
    • 7) la conciergerie.

    Les étudiants des 1 et 2ecycles, se tiennent normalement dans la zone 3), la zone 2) étant plutôt réservée aux 3ecycle et enseignants, mais aucune limite n'a été mise en fait à l'accessibilité de ces diverses zones par tous.

    Les séparations matérielles des diverses zones, très utiles si l'on veut les chauffer indépendamment, ont peut-être quelques inconvénients au moins psychologiques en période de pleine ouverture au niveau de l'accessibilité des divers services, également pour le personnel (qui doit passer 2 portes vitrées pour accéder à la zone de la banque de prêt et des services publics.

    On peut à cette occasion regretter l'éloignement relatif des bureaux des sections de cette zone (ainsi que de la salle de manutention) isolant trop le personnel du centre nerveux de la bibliothèque; il faut cependant noter que vu la taille assez petite du bâtiment les distances à parcourir sont assez réduites et sur un plan purement horizontal ; le personnel garde le contact avec les lecteurs en assurant un service de renseignements dans le hall d'accueil près de la banque de prêt et des fichiers (il y a possibilité aussi de placer un bureau pour l'aide aux lecteurs dans les salles de lecture qui manquent de surveillance).

    Par contre on a trouvé des avantages à pouvoir regrouper les services intérieurs.

    Le bâtiment dans son état actuel (1re tranche) présente donc quelques insuffisances; nous pouvons signaler:

    • la faible capacité des magasins, déjà saturés (priorité absolue doit être donnée à leur agrandissement)
    • l'exiguïté des bureaux pour les personnels techniques et administratifs (contrairement à ceux du personnel scientifique), leur insuffisance en nombre, puisqu'il n'est pas possible dans l'immédiat d'envisager l'installation de l'absence d'une salle pour regrouper les bibliographies et les catalogues.

    D'autre part, il manque une grande salle de réunion et de projections (pouvant recevoir 30 à 60 personnes) et dans certains cas on doit utiliser les salles de lecture.

    La salle des professeurs, commune aux deux sections, est surtout fréquentée par les enseignants de Lettres (y sont regroupées en effet une grande partie des bibliographies spécialisées en Lettres et Sciences humaines, ainsi que les ouvrages inscrits au programme du CAPES et de l'Agrégation).

    Cette salle sert également aux réunions (conseil de la bibliothèque principalement) mais s'avère souvent trop petite pour cette fonction.

    La salle des travaux pratiques, est trop petite elle aussi. Elle sert à l'enseignement professionnel et aux recherches bibliographiques par le personnel et par les enseignants, car elle a l'avantage d'être à proximité des bureaux et de la salle des professeurs.

    Les aménagements ont dû tenir compte de l'installation dans un même bâtiment de deux sections distinctes.

    La coexistence dans un bâtiment unique des deux sections Lettres et Droit est intéressante à un double titre.

    Elle permet :

    • la mise en commun de fonds généraux: bibliographies générales, littérature professionnelle,
    • une répartition harmonieuse des acquisisions dans certains secteurs complémentaires du fait de l'interdisciplinarité : philosophie du droit, histoire économique, sociale et institutionnelle, sociologie entre autres.

    Sur le plan du service public (accès aux documents et communications), on peut noter une difficulté inhérente à l'emploi de deux classifications différentes

    • C.D.U. en Lettres.
    • Classification à notation alphabétique en Droit.

    Ce manque d'unité peut être déroutant pour les usagers. les deux secteurs Lettres et sciences humaines, Droit et Sciences économiques sont confrontés à des problèmes particuliers liés à la spécificité des disciplines qu'ils recouvrent et à leur situation au sein de l'Université.

    • En Lettres : on peut souligner la multiplicité des domaines d'intérêt et une grande dispersion dans l'édition.

    Pour la constitution et le renouvellement du fonds, priorité doit être accordée aux textes majeurs (Collections et recueils de textes et documents et oeuvres littéraires) représentant des valeurs durables et aux ouvrages d'érudition.

    • En Droit : il apparaît plus aisé de circonscrire le champ des disciplines à représenter. Cela se traduit par une plus grande concentration au niveau de l'édition.

    En ce qui concerne les achats, l'impératif premier est l'actualisation des éditions qui se périment très rapidement. Les textes n'ont généralement qu'une valeur temporaire.

    En outre, la part des manuels l'emporte de plus en plus sur celle des monographies savantes. Cette prépondérance s'explique par la présence à l'UER de Droit d'une salle de documentation très spécialisée réservée à la recherche. Le public étudiant (1 et 2e cycle) demande presque exclusivement - les juristes notamment - des manuels d'étude et des répertoires de législation et jurisprudence constamment tenus à jour (en Lettres, il existe des bibliothèques de départements ouverts à tous).

    Les fonds Droit et Lettres sont totalement différenciés au niveau des magasins et des salles de lecture, mais les périodiques se trouvent dans une salle commune.

    Les instructions de 1962 toujours en vigueur n'ont pu être appliquées à la Bibliothèque, celle-ci ne disposant pas encore des locaux adéquats. Les extensions prévues dans le cadre de la seconde tranche permettront l'installation de salles de lecture spécialisées correspondant au second niveau préconisé par ces instructions, ainsi que le reclassement des volumes en magasins. Actuellement les fonds en magasins sont classés selon les normes de 1962 définies pour les collèges universitaires (par numéros d'invention).

    Les bibliographies générales sont regroupées dans la salle des travaux pratiques commune aux deux sections, qui comprend également le fonds professionnel.

    Les bibliographies spécialisées sont rattachées à la section correspondance:

    • en Lettres : elles sont réparties entre la salle des professeurs et la salle des périodiques,
    • en Droit : les bibliographies rétrospectives se répartissent entre les différents secteurs de la salle de lecture.

    Les bibliographies courantes et les bibliographies de dépouillement d'articles de périodiques sont regroupées dans la salle des périodiques.

    Les catalogues sont distincts, mais regroupés dans le hall d'accueil, à proximité de la banque de prêt.

    Une partie des collections se trouve en libre accès dans les salles de lecture et dans la salle des périodiques : Signalons pour mémoire qu'outre les équipements traditionnels de bureau et de matériels spécifiques aux bibliothèques (récemment une machine à photocopier les fiches d'ouvrages), il a été acquis dès l'origine avec les crédits d'équipement du matériel pour microformes (caméra développeuse pour microfilm 16 mm, lecteur monteur de jaquettes, appareils de lecture pour microfilms et microfiches, lecteur-reproducteur, meuble ignifuge de stockage).

    Enfin un terminal a été installé dans le cadre des implantations prévues par la DBMIST pour les sections de bibliothèques universitaires.

    Des aménagements pourront être réalisés en 2etranche: par exemple regroupement de toutes les bibliographies dans la salle actuelle des périodiques, en pratiquant une ouverture permettant une liaison plus directe avec la zone banque de prêt-fichiers; cette salle pourrait aussi être transformée en salle des TP, enseignement professionnel et réunions.

    L'ancienne salle des TP pourrait regrouper les microformes et l'audio-visuel avec leurs moyens d'exploitation ou encore être transformée en bureaux en cas de nécessité (les lecteurs de microformes pourraient aussi être installés dans une zone de repos actuelle peu utilisée derrière l'entrée des sanitaires publics).

    Les périodiques seraient placés dans les salles des secteurs spécialisés (3ecycle-recherche) où des bureaux pourraient être implantés.

    En effet, dans le souci d'assurer une présence du personnel au contact des lecteurs, il paraît indispensable de prévoir en 2e tranche l'installation de postes de travail - bureaux vitrés de petites dimensions - à la charnière des salles de travail 1 er et 2e cycle et des salles de secteurs spécialisés, avec ouverture et vue sur les deux salles, dans un souci de surveillance, de renseignement, afin de pallier l'inconvénient de l'éloignement encore accentué des bureaux d'administration par rapport aux salles des secteurs spécialisés 3ecycle et recherche.

    Il est envisageable aussi d'installer un véritable bureau, en Lettres, entre la banque de prêt et les fichiers et également à l'intérieur de la salle 1er et 2ecycle à proximité de l'entrée à gauche (communication avec les lecteurs, travail sur les catalogues sur fiches et sur les livres).

    Devant les difficultés de séparer les fonds devant aller en 1 er et 2e cycles ou en 3e cycle - recherche, on pourrait concevoir un aménagement identique des deux salles, par secteurs de disciplines (par ex. droit privé, droit public... ou littérature française, histoire...) regroupant en accès livre à la fois les livres et les périodiques - sans considération de niveau - touchant à la discipline considérée.

    Autre hypothèse: aménagement en salle de réunion-projection de l'extension prévue pour les bureaux, transformation des vastes bureaux actuels des conservateurs en bureaux des sous-bibliothécaires (plusieurs postes de travail possibles), installation des conservateurs dans les bureaux actuels des sous-bibliothécaires.

    De toute façon la flexibilité des bâtiments peut permettre un certain nombre de combinaisons différentes pour les aménagements intérieurs.

    Si un agrandissement de la zone des bureaux des sections est possible, le secteur direction-administration pourtant trop juste (sauf en ce qui concerne le bureau du directeur) n'est pas susceptible d'extension (nous avons dû transformer en bureau le local « vestiaires-archives » situé près du standard).

    Dans le cadre de cette deuxième tranche doit être installé un monte-livres (malheureusement trop éloigné de la banque de prêt), seul, en dehors des escaliers, un ascenseur monte-charge reliant actuellement les divers étages des magasins.

    Enfin une trame est en place pour un système d'horloges électriques.

    Précisons encore qu'il a été prévu que les extensions pouvaient être réalisées indépendamment les une des autres (magasins, bureaux, salles de lecture) et sans arrêter le fonctionnement général de la bibliothèque.

    C'est ainsi que devrait être construit en toute priorité le 2ebloc magasin conçu pour 200000 volumes (le premier - 80000 volumes étant, rappelons-le, complètement occupé); cela permettrait aussi d'accueillir les dépôts de bibliothèques d'UER (qui commencent également à manquer de place), facilitant ainsi la politique documentaire commune souhaitée au sein de l'Université.

    Une remarque importante s'impose ici : la division égalitaire des deux tranches, avec construction en première tranche de la moitié seulement de la surface totale prévue, conduit immanquablement à des problèmes difficiles à résoudre. Une bibliothèque est un tout cohérent qui ne peut être conçu et agencé d'une manière logique et fonctionnelle que si la totalité du programme est menée à bien en une seule fois. Or le système actuel oblige, dans le cadre imposé de la moitié de la surface accordée, à concevoir l'ensemble des services en vue d'un fonctionnement autonome pour un temps indéterminé. Il est donc obligatoire dans ces conditions de sacrifier certaines fonctions de la Bibliothèque en en favorisant d'autres estimées plus prioritaires : c'est ce qui a été fait à Pau en privilégiant dans la première tranche les services publics, avec libre accès, au détriment des magasins à livres, qui ont fait rapidement défaut.

    On devrait donc pouvoir accorder en première tranche plus de la moitié de la surface totale : par exemple pour notre cas 4000 m2 en première tranche et 2 000 en 2e tranche (nous aurions alors pu avoir 1 000 m2supplémentaires de magasins) ; mais l'idéal reste la construction complète de l'établissement en une seule fois. Aux termes de ce panorama que nous avons voulu surtout critique, sans doute de façon exagérée, on peut dire que, malgré les réserves et inconvénients que nous avons signalés, et dont certains devraient disparaître ou être sensiblement atténués avec la construction de la deuxième tranche, ce bâtiment, de conception originale et esthétiquement très étudié, offre dans l'ensemble, étant donné ses dimensions assez modestes, un cadre de travail très agréable tant pour le personnel que pour les usagers.

    Si le caractère fonctionnel d'un bâtiment doit s'apprécier plus en pratique par le plaisir qu'on a à y vivre que par des normes théoriques, on peut considérer que sur ce plan la bibliothèque Droit et lettres de Pau est une réussite.

    Vignette de l'image.Illustration
    Fiche technique bibliothèque universitaire Droit-Lettres

    Vignette de l'image.Illustration
    Plan bibliothèque universitaire Droit-Lettres